Sierra Ballena en Punta Ballena en Punta Ballena
Volver
Recomendar
Descripción
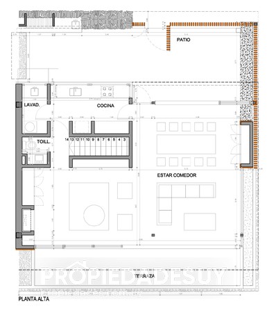
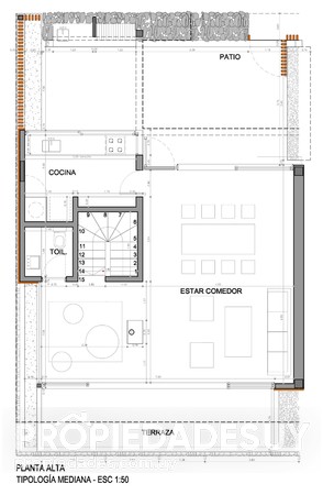
Este Edificio pionero en la zona, cuneta con 16 unidades duplex, de uno, dos y tres dormitorios. Aterrazados, con increíbles vistas diurnas y nocturnas ademas de la barranca rocosa que caracteriza al lugar.
Vista a la bahia de Punta del Este desde todas sus unidades y terraza continua en todo su frente.
Patios indIviduales con parrilla, calefacción por piso radiante con control individual por ambiente, estufa a leña, aberturas de alta prestación y una o dos cocheras dependiendo de la unidad.
Servicios
Pileta con canal de nado de 40 metros
Solarium
Lavadero
Bajada directa a la playa
Servicio de guarderia de reposeras y sombrillas
Sum equipado
Gimnasio
Vigilancia
Mapa





